 |  |  |
Visualisierung des Bestands Kronengasse mit Link zum virtuellen Rundgang
| Ansicht von Süd-Ost | Ansicht von Süd-West
|
 |  |  |
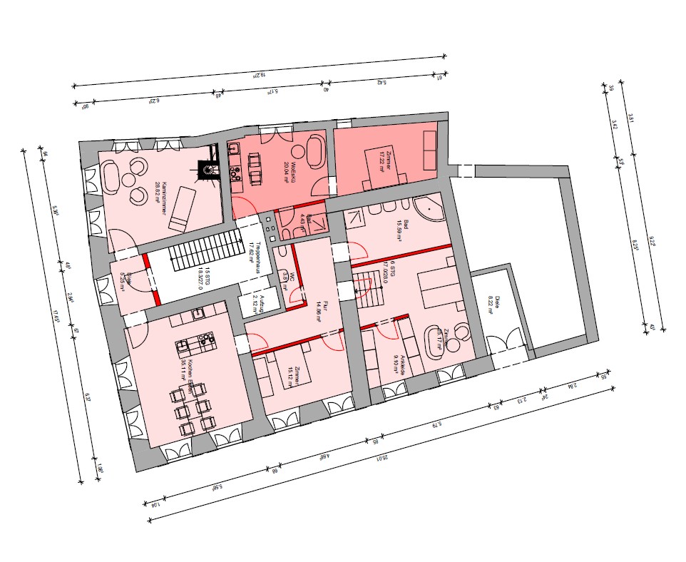
| Visualisierung des Kaminzimmers | Grundriss 1.OG Umgestaltung zu 2,5 und 4,5 Zimmer-Wohnungen | 1.OG in räumlicher Darstellung |
 |  |  |
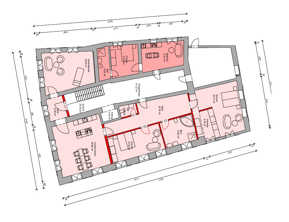
| Visualisierung des Kaminzimmers | Grundriss 2.OG Umgestaltung zu 2,5 und 4,5-Zimmer-Wohnungen | 2.OG in räumlicher Darstellung
|